VENTA – PLAYA DE ESTACIONAMIENTO

  • USD 550.000
Bolivar 1234
Venta
VENTA – PLAYA DE ESTACIONAMIENTO
Bolivar 1234
  • USD 550.000

Resumen

ID de propiedad: RW-22550
  • Terreno
  • Tipo de propiedad
  • 30
  • Cocheras
  • Dirección Bolivar 1234
  • Ciudad Posadas
  • Código postal 3300
  • País Argentina

Descripción

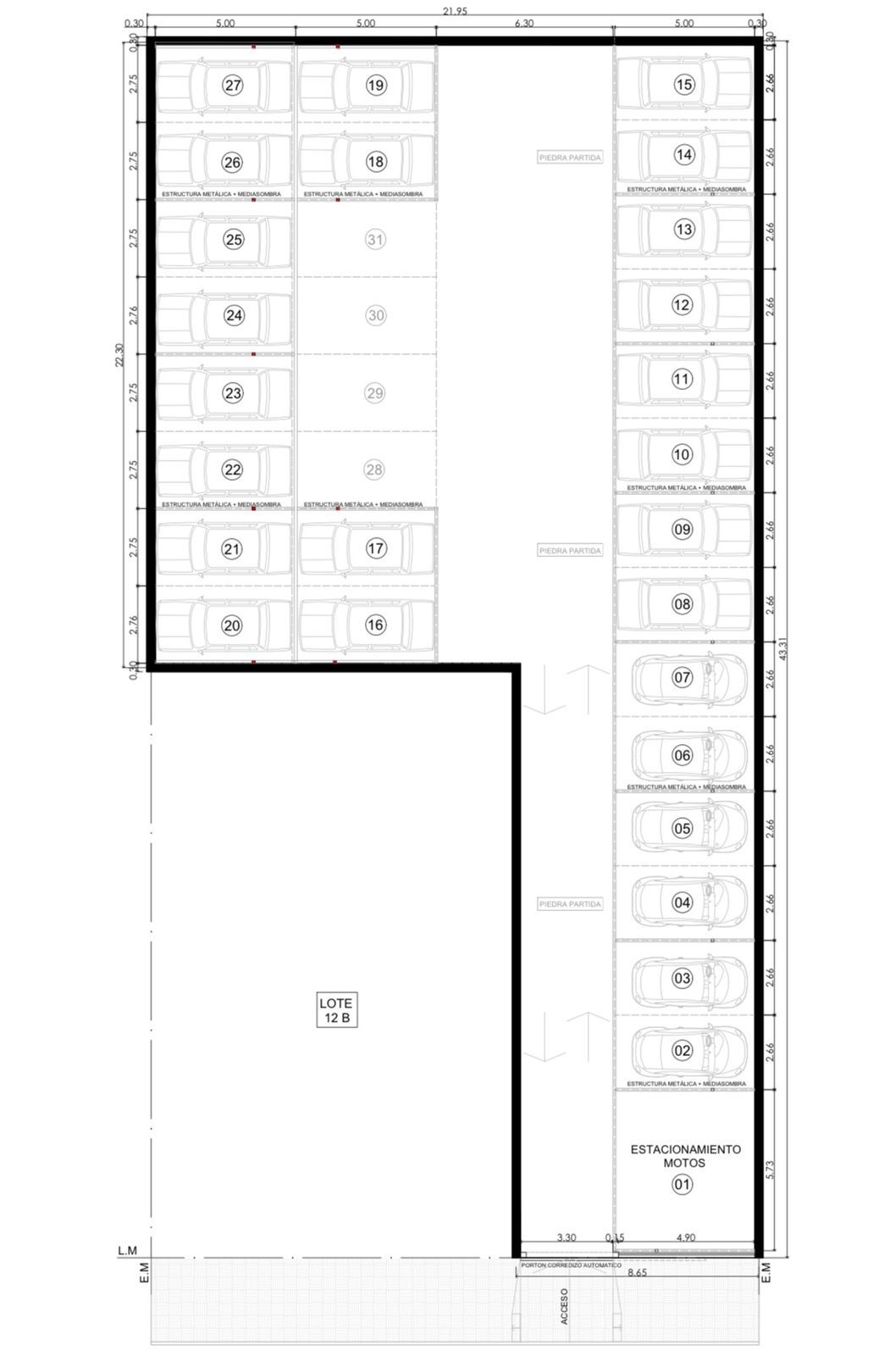
En el corazón de la ciudad, sobre calle Bolívar al 1234, entre Av. Roque Sáenz Peña y calle General Paz, se presenta una oportunidad difícil de repetir: playa de estacionamiento en pleno funcionamiento, con renta inmediata desde el primer día.

El terreno cuenta con más de 660 m², desarrollado en formato “L”, con 8,50 metros de frente sobre calle Bolívar, 21 metros al fondo y una profundidad de mas 43 metros, optimizando al máximo su capacidad operativa y su potencial urbano.

Actualmente dispone de 30 espacios de estacionamiento, todos alquilados en su totalidad, de los cuales 20 son techados, garantizando una ocupación plena y sostenida, en una zona de alta demanda permanente.

🔹 Superficie total: +660 m²
🔹 Cantidad de espacios: 30 
🔹 Estado: emprendimiento activo y funcionando
🔹 Renta: inmediata post compra
🔹 Valor de venta: USD 550.000
🔹 Valor aproximado: poco más de USD 800/m²

Una inversión sólida, con flujo de ingresos comprobable, ubicación estratégica y excelente relación precio–metro cuadrado para el centro de Posadas. Ideal para quienes buscan preservar capital, generar renta directa y posicionarse en una de las zonas más consolidad de la ciudad.

Detalles

  • Precio: USD 550.000
  • Superficie del terreno: 668 m²
  • Cocheras: 30
  • Tipo de propiedad: Terreno
  • Operación de la propiedad: Venta

Características

Información de contacto

Conocé sus propiedades
ERNESTO SANTIAGO FURLAN – REAL WORK

Consultá por esta propiedad

Propiedades similares

Comparar listados

Comparar
ERNESTO SANTIAGO FURLAN – REAL WORK
  • ERNESTO SANTIAGO FURLAN – REAL WORK